Качество, проверенное временем.
Качественная рабочая проектная документация с полным набором чертежей и расчетом стройматериалов для строительства.
Главная

Помощь с выбором проекта дома тел: +7 (926) 377-46-81. WhatsApp: +7 (926) 377-46-81.

Расширенный поиск проекта
Все проекты домов
Российские проекты
Зарубежные проекты
Проекты домов по категориям
Проекты строений
Авторизация покупателя
Логин:
Пароль:
Забыли свой пароль?
Профиль покупателя
Корзина0 позиций
на сумму 0 руб.


дома из кирпича дома из газобетона и пеноблоков деревянные дома
Проекты домов
из кирпича
Проекты домов
из газобетона
Проекты
деревянных домов
Сравнение товаров: 0 товаров
Ваша корзина пуста
Рассчитать смету Печать Добавить в избранное Удалить из избранного 0

Проект СПА-комплекса с бассейном БЭ 213-9: 213,90 кв.м

20 000 руб.


Бассейн БЭ 213-9

Кликните для увеличения Кликните для увеличения

Кликните для увеличения
Кликните для увеличения
Кликните для увеличения
Кликните для увеличения

Описание:
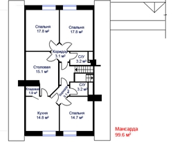
Здание бассейна одноэтажное с мансардным этажом, примыкает остекленным переходом к существующему жилому дому. На первом этаже здания располагается помещение бассейна со скимерной чашей, санузел, душ, раздевалка, холл, тамбур, сауна, тренажерная, коридор, кладовая, лестница, котельная и галерея остекленная холодная. Рекомендуемая отделка чаши - мозаичная бассейновая смесь. На мансардном этаже располагается три спальни, столовая, коридор, санузел, коридор, кухня, кладовая.

Чаша бассейна: скимерная.
Размеры чаши бассейна: 6,46 х 3,08 х 1,6 м. (Н воды).

Площадь общая: 213,90 кв.м.
Площадь жилая: 65,10 кв.м.
Площадь бассейна: 52,20 кв.м.
Высота первого этожа: 2,70 м.
Высота мансарды: от 1,60 до 2,70 м.

Технология и конструкция: кирпичная трехслойная утепленная кладка.
Наружные стены: утепленная 3-х слойная кладка толщиной 550 мм. (внутренняя верста толщиной 380 мм. из 7-ми щелевого керамического кирпича, 50 мм. утеплитель из базальтовых плит, внешняя верста 120 мм. из облицовочного кирпича).
Перекрытие: сборный железобетон.
Фундамент: монолитный ж/б. ленточный.
Крыша: из гибкой черепицы. Подшивка свесов - дерево. Воду с крыши отвести через лотки, воронки и водоприемные трубы на отмостку.
Отделка фасада.
Фасад: облицованы кирпичом и декоративным деревянным брусом.
Цоколь: облицован искусственным камнем.
Ступени наружных лестниц: облицевать морозостойким не скользким керамогранитом.

Инженерные решения:
Отопление: от газового котла, расположенного в котельной на первом этаже.
Водоснабжение: из существующего дома. Приготовление горячей воды в бойлере, расположенном в проектируемой котельной.
Вентиляция: помещения плавательного бассейна приточно - вытяжная с механическим побуждением.
Канализация бытовая: в поселковую сеть. Канализация ливневая и условно чистая (слив воды из чаши бассейна) - в лотки ливневой канализации, далее - в поселковые ливнеприемники.
Электроснабжение: от существующего дома.

Габаритные размеры бассейна: 14,30 х 10,10 х 7,04 м.
Минимальные размеры участка: 19,00 x 15,0 м.
Зеркальная проекция: нет.
Проект в другой технологии строительства: нет.
ПРИМЕЧАНИЕ:
- Состав: Строительный комплект: (АР + КР) = 20000 руб.
- Рабочий комплект: (АР + КР + ИС) = 30000 руб.



Предложение Товар/Услуга
СТРОИТЕЛЬСТВО Калькулятор стоимости материалов ➤
БЕСПЛАТНО Экспресс-доставка проектов во все регионы России бесплатно!
ЦЕНЫ Мы не посредники и не перепродаем проекты по завышенным ценам. Обратившись к нам вы сможете напрямую заключить договор на приобретение готового проекта дома или индивидуальное проектирование непосредственно с архитекторами авторами проектной документации и по ценам, которые они предлагают.
ПОДАРКИ При покупке любого проекта серий ДС и ДСГ мы дарим вам проект бани ДС 34-6.

Стоимость проекта АР+КР: 20 000 руб.
Стоимость проекта АР+КР+ИС: 30 000 руб.
Архитектурный паспорт проекта: 4 000 руб.
Заказать дополнительную копию проекта:
НЕ заказывать копию проекта:  
1 копия проекта: 4 000 руб.
2 копии проекта: 8 000 руб.
Выбрать проекцию дома:
Проект: прямая проекция  

По вопросам консультации или приобретения проектной документации по этому проекту просьба звонить по телефону:
+7 926-377-46-81

 
Как правильно оформить заказ проекта дома на parthenon-house.ru?

Проект дома Сроки Экспресс-Доставки Вашего заказа "от двери до двери" по России
Москва, Санкт-Петербург, Орел, Белгород, Рязань, Курск, Нижний Новгород, Казань, Ярославль, Калуга, Иваново 1 день
Калининград, Архангельск, Краснодар, Ростов-на-Дону, Астрахань, Волгоград, Самара, Саратов, Екатеринбург, Новосибирск, Омск, Томск, Сургут, Тюмень, Новый Уренгой, Ханты-Мансийск, Барнаул, Челябинск, Пермь, Красноярск, Ижевск, Уфа 2 дня
Хабаровск, Владивосток, Иркутск, Якутск, Улан-Удэ 3 дня
Салехард, Нерюнгри, Южно-Сахалинск, Абакан, Чита 4 дня
Доставка в страны СНГ 3 - 5
дней

Назад в раздел
 

Последние проекты
Дом с гаражом
ПА-278Н 278,18 кв.м
Дом с сауной
ПА-316Н 316,70 кв.м
Новые проекты
Новые проекты домов и коттеджей Новые проекты домов и коттеджей
Архив новые проекты
домов и коттеджей
Проект месяца
Лучший проект месяца. Январь 2024г. Проект двухэтажного дома с гаражом ДС 244-9 Лучший проект месяца. Январь 2024г. Проект двухэтажного дома с гаражом ДС 244-9
Архив проект месяца
Пример проекта дома серии домов ЯП и КП
Определение площадей

Объявления

Мы оказываем помощь и даем грамотные и профессиональные консультации по подбору готовых проекты домов, коттеджей, бань, гаражей, бассейнов, беседок и других малоэтажных построек. В нашем каталоге также широко представлены проекты коммерческого назначения (мотели, магазины, автомойки). Мы оказываем свои услуги по всей России и странам СНГ. Проектная документация разработана в соответствии с действующими строительными нормами и правилами, принятыми в Российской Федерации и обеспечивает безопасную для жизни и здоровья людей эксплуатацию объекта при соблюдении предусмотренных рабочими чертежами мероприятий. Мы оказываем содействие не только в подборе готовых проектов домов самых лучших архитекторов России, но также можем помочь вам с индивидуальным проектированием по вашим эскизам. Кроме этих проектных работ, мы можем предложить и рекомендовать вам услуги надежных строительных компаний работающих в Московской области и других регионах России.

| Проекты домов | Пример проекта | Строительство | Все о стройке | Контакты | Мобильная версия | Политика конфиденциальности и обработки персональных данных |

https://www.parthenon-house.ru - готовые проекты домов, малоэтажное строительство России.
Разработка, дизайн и продвижение сайта - компания "ПАРФЕНОН" (2007-2025)
Мы на Одноклассниках Мы вконтакте