Качество, проверенное временем.
Качественная рабочая проектная документация с полным набором чертежей и расчетом стройматериалов для строительства.
Главная

Помощь с выбором проекта дома тел: +7 (926) 377-46-81. WhatsApp: +7 (926) 377-46-81.

Расширенный поиск проекта
Все проекты домов
Российские проекты
Зарубежные проекты
Проекты домов по категориям
Проекты строений
Авторизация покупателя
Логин:
Пароль:
Забыли свой пароль?
Профиль покупателя
Корзина0 позиций
на сумму 0 руб.


дома из кирпича дома из газобетона и пеноблоков деревянные дома
Проекты домов
из кирпича
Проекты домов
из газобетона
Проекты
деревянных домов
Сравнение товаров: 0 товаров
Ваша корзина пуста
Рассчитать смету Печать Добавить в избранное Удалить из избранного 0

Проект СПА крмплекса с турецкой баней и сауной БЭ 253-70, 253,70 кв.м

45 000 руб.


Бассейн БЭ 253-70


Кликните для увеличения
Кликните для 

увеличения

Описание:
Пристроенный оздоровительно-восстановительный комплекс с бассейном, сауной и турецкой баней. Проект разработан для строительства во II-В климатическом районе. Здание запроектировано как пристроенное к существующему жилому дому.

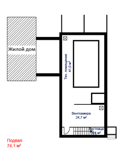
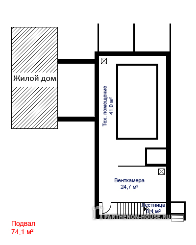
Тех. помещение: да.
Бассейн: да.
Тренажерный зал: да.
Сауна: да.
Турецкая баня: да.
Душевые: да.
Террасы: да.

Чаша бассейна: система водоочистки - переливная в лоток. Оборудование чаши: система водоочистки, металлическая лестница, римская лестница, подводные прожектора, противоток, металлический поручень. Отделка чаши - мозаичная смесь. Над чашей бассейна запроектирован большой световой фонарь.
Размеры чаши бассейна: 4,0 х 7,5 х 1,6 м.(Н воды)

Площадь застройки: 214,90 кв.м.
Площадь общая: 253,70 кв.м. в том числе подвал 74,10 кв.м.


Высота подвала: 2,50 м.
Высота 1 этажа: 3,00 - 4,00 м.

Крыша:
Площадь крыши: 144,3 кв.м.
Кровля : эксплуатируемая со световым фонарем.

Технология и конструкция: утепленная трехслойная кирпичная кладка.
Наружние стены: кирпич с утеплителем.
Стены чаши бассейна: железобетон.

Фундамент, подвал и перекрытие: монолитный железобетон с гидроизоляцией, утеплением и дренажом.

Отделка.
Кровля: керамогранит, не скользкий и морозостойкий.
Фасад: штукатурка.
Цоколь: полированный гранит.

Инженерные решения:
Отопление: от котла существующего дома, отопление помещения плавательного бассейна воздушное, совмещенное с приточно-вытяжной вентиляцией. В помещении бассейна и в переходе запроектированы водяные теплые полы.
Водоснабжение: от сети существующего жилого дома.
Вентиляция: помещения плавательного бассейна приточно - вытяжная с механическим побуждением.
Канализация бытовая: в центральную сеть.
Электроснабжение: от внешних сетей.

Габаритные размеры бассейна: 21,0 х 11,8 м.
Минимальные размеры участка: 29,0 х 19.8 м.
Зеркальная проекция: нет.
Проект в другой технологии строительства: нет.
ПРИМЕЧАНИЕ:
- Состав: АР + КР = 45000 руб.
- Рабочий комплект: (АР + КР + ИС) = 75000 руб.

Фотографии интерьеров СПА комплекса
Посмотреть все интерьеры этого СПА комплекса


Предложение Товар/Услуга
СТРОИТЕЛЬСТВО Калькулятор стоимости материалов ➤
БЕСПЛАТНО Экспресс-доставка проектов во все регионы России бесплатно!
ЦЕНЫ Мы не посредники и не перепродаем проекты по завышенным ценам. Обратившись к нам вы сможете напрямую заключить договор на приобретение готового проекта дома или индивидуальное проектирование непосредственно с архитекторами авторами проектной документации и по ценам, которые они предлагают.
ПОДАРКИ При покупке любого проекта серий ДС и ДСГ мы дарим вам проект бани ДС 34-6.

Стоимость проекта АР+КР: 45 000 руб.
Стоимость проекта АР+КР+ИС: 75 000 руб.
Архитектурный паспорт проекта: 4 000 руб.
Заказать дополнительную копию проекта:
НЕ заказывать копию проекта:  
1 копия проекта: 4 000 руб.
2 копии проекта: 8 000 руб.
Выбрать проекцию дома:
Проект: прямая проекция  

По вопросам консультации или приобретения проектной документации по этому проекту просьба звонить по телефону:
+7 926-377-46-81

 
Как правильно оформить заказ проекта дома на parthenon-house.ru?

Проект дома Сроки Экспресс-Доставки Вашего заказа "от двери до двери" по России
Москва, Санкт-Петербург, Орел, Белгород, Рязань, Курск, Нижний Новгород, Казань, Ярославль, Калуга, Иваново 1 день
Калининград, Архангельск, Краснодар, Ростов-на-Дону, Астрахань, Волгоград, Самара, Саратов, Екатеринбург, Новосибирск, Омск, Томск, Сургут, Тюмень, Новый Уренгой, Ханты-Мансийск, Барнаул, Челябинск, Пермь, Красноярск, Ижевск, Уфа 2 дня
Хабаровск, Владивосток, Иркутск, Якутск, Улан-Удэ 3 дня
Салехард, Нерюнгри, Южно-Сахалинск, Абакан, Чита 4 дня
Доставка в страны СНГ 3 - 5
дней

Назад в раздел
 

Последние проекты
Дом с гаражом
ПА-278Н 278,18 кв.м
Дом с сауной
ПА-316Н 316,70 кв.м
Новые проекты
Новые проекты домов и коттеджей Новые проекты домов и коттеджей
Архив новые проекты
домов и коттеджей
Проект месяца
Лучший проект месяца. Январь 2024г. Проект двухэтажного дома с гаражом ДС 244-9 Лучший проект месяца. Январь 2024г. Проект двухэтажного дома с гаражом ДС 244-9
Архив проект месяца
Популярно и интересно о газобетоне
Определение площадей

Объявления

Мы оказываем помощь и даем грамотные и профессиональные консультации по подбору готовых проекты домов, коттеджей, бань, гаражей, бассейнов, беседок и других малоэтажных построек. В нашем каталоге также широко представлены проекты коммерческого назначения (мотели, магазины, автомойки). Мы оказываем свои услуги по всей России и странам СНГ. Проектная документация разработана в соответствии с действующими строительными нормами и правилами, принятыми в Российской Федерации и обеспечивает безопасную для жизни и здоровья людей эксплуатацию объекта при соблюдении предусмотренных рабочими чертежами мероприятий. Мы оказываем содействие не только в подборе готовых проектов домов самых лучших архитекторов России, но также можем помочь вам с индивидуальным проектированием по вашим эскизам. Кроме этих проектных работ, мы можем предложить и рекомендовать вам услуги надежных строительных компаний работающих в Московской области и других регионах России.

| Проекты домов | Пример проекта | Строительство | Все о стройке | Контакты | Мобильная версия | Политика конфиденциальности и обработки персональных данных |

https://www.parthenon-house.ru - готовые проекты домов, малоэтажное строительство России.
Разработка, дизайн и продвижение сайта - компания "ПАРФЕНОН" (2007-2025)
Мы на Одноклассниках Мы вконтакте