|
|
Расширенный поиск проекта |
|
|
|
Проекты домов по категориям |
|
|
Проект дома с гаражом ГБ 107-8: 107,80 кв.м
|
28 000 руб.
|
|
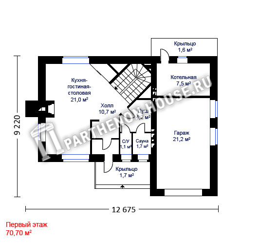
Проект уютного компактного дома со встроенным гаражом для загородного отдыха и проживания одной семьи. Планировка первого этажа способствует воплощению любых ваших смелых дизайнерских фантазий. Жилые помещения дома расположены на втором этаже, что способствует тихому отдыху, обособленному от общественной зоны дома. Обширная санитарная зона дает возможность удобному расположению сантехники, включая встроенную сауну. Центром композиции первого этажа является перетекающие объемы холла с лестницей и гостиной.
Котельная: да.
Балкон: да.
Сауна: да.
Гараж: да.
Гардеробные: да.
Камин: да.
Площадь общая: 107,80 кв.м.
Площадь жилая: 51,30 кв.м.
Технология и конструкция: строительство дома из блоков ячеистого бетона (газобетон, пеноблок).
Фундамент: монолитный ж/б.
Наружные стены: газоблок, пеноблок.
Перекрытия дома: монолитные ж/б.
Кровля: натуральная черепица.
Наружная отделка: стены - облицовочный кирпич, цоколь - отделка камнем.
Габаритные размеры дома: 12,675 х 9,220 м.
Минимальные размеры участка: 19,00 x 16,00 м.
ПРИМЕЧАНИЕ:
- Состав проектной документации:
- Архитектурно-Строительный раздел - да.
- Инженерные разделы (ОВ, ВК,ЭО) - нет.
- Стоимость проектной документации >>>
- Разработка зеркального варианта дома = + 6000 руб. к базовой цене.
- Разработка фундамента дома под геологические условия Заказчика = + от 10000 руб. к базовой цене.
- Доработка проекта под конкретные пожелания заказчика = цена договорная.
|
|
|
|
|
Предложение |
Товар/Услуга |
СТРОИТЕЛЬСТВО |
Калькулятор стоимости материалов ➤
|
БЕСПЛАТНО |
Экспресс-доставка проектов во все регионы России бесплатно! |
ЦЕНЫ |
Мы не посредники и не перепродаем проекты по завышенным ценам. Обратившись к нам вы сможете напрямую заключить договор на приобретение готового проекта дома или индивидуальное проектирование непосредственно с архитекторами авторами проектной документации и по ценам, которые они предлагают. |
ПОДАРКИ |
При покупке любого проекта серий ДС и ДСГ мы дарим вам проект бани ДС 34-6. |
 |
Сроки Экспресс-Доставки Вашего заказа "от двери до двери" по России |
Москва, Санкт-Петербург, Орел, Белгород, Рязань, Курск, Нижний Новгород, Казань, Ярославль, Калуга, Иваново |
1 день |
Калининград, Архангельск, Краснодар, Ростов-на-Дону, Астрахань, Волгоград, Самара, Саратов, Екатеринбург, Новосибирск, Омск, Томск, Сургут, Тюмень, Новый Уренгой, Ханты-Мансийск, Барнаул, Челябинск, Пермь, Красноярск, Ижевск, Уфа |
2 дня |
Хабаровск, Владивосток, Иркутск, Якутск, Улан-Удэ |
3 дня |
Салехард, Нерюнгри, Южно-Сахалинск, Абакан, Чита |
4 дня |
Доставка в страны СНГ |
3 - 5 дней |
|
|
Новые проекты домов и коттеджей
Лучший проект месяца. Январь 2024г. Проект двухэтажного дома с гаражом ДС 244-9
|
|
|
Мы оказываем помощь и даем грамотные и профессиональные консультации по подбору готовых проекты домов, коттеджей, бань, гаражей, бассейнов, беседок и других малоэтажных построек. В нашем каталоге также широко представлены проекты коммерческого назначения (мотели, магазины, автомойки). Мы оказываем свои услуги по всей России и странам СНГ. Проектная документация разработана в соответствии с действующими строительными нормами и правилами, принятыми в Российской Федерации и обеспечивает безопасную для жизни и здоровья людей эксплуатацию объекта при соблюдении предусмотренных рабочими чертежами мероприятий. Мы оказываем содействие не только в подборе готовых проектов домов самых лучших архитекторов России, но также можем помочь вам с индивидуальным проектированием по вашим эскизам. Кроме этих проектных работ, мы можем предложить и рекомендовать вам услуги надежных строительных компаний работающих в Московской области и других регионах России.
|
|