Качество, проверенное временем.
Качественная рабочая проектная документация с полным набором чертежей и расчетом стройматериалов для строительства.
Главная

Помощь с выбором проекта дома тел: +7 (926) 377-46-81. WhatsApp: +7 (926) 377-46-81.

Расширенный поиск проекта
Все проекты домов
Российские проекты
Зарубежные проекты
Проекты домов по категориям
Проекты строений
Авторизация покупателя
Логин:
Пароль:
Забыли свой пароль?
Профиль покупателя
Корзина0 позиций
на сумму 0 руб.


дома из кирпича дома из газобетона и пеноблоков деревянные дома
Проекты домов
из кирпича
Проекты домов
из газобетона
Проекты
деревянных домов
Сравнение товаров: 0 товаров
Ваша корзина пуста
Рассчитать смету Печать Добавить в избранное Удалить из избранного 0

Проект банного комплекса ГЮ-176: 176,28 кв.м

50 500 руб.


Проект дома ГЮ-176

Кликните для увеличения Кликните для увеличения Кликните для увеличения Кликните для увеличения
АКЦИИ
на этот проект дома

Бесплатная доставка
Почтой России во все регионы РФ !!!
Кликните для увеличения Кликните для увеличения

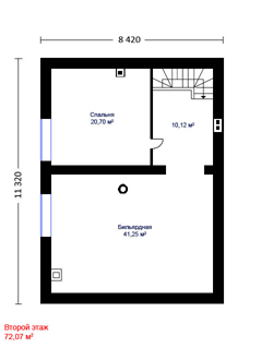
Проект комплекса для отдыха с бассейном, сауной и бильярдной в технологии строительства из газобетонных блоков.

Тех. помещение: да.
Жилые помещения: комната отдыха + спальня.
Сауна + душевая: да.
Бассейн: да.
Веранда: да.
Терраса: да.
Бильярдная: да.

Площадь общая дома: 176,28 кв.м.
Высота помещений 1 этажа: 2,790 м.
Высота 2 этажа: переменная от 1,700 м. до 3,100 м.

Технология и конструкция: Строительство дома из газобетона.
Фундамент: монолитная железобетонная лента.
Стены наружные: из газобетонных блоков толщиной 400 мм. (D500) + клинкерная плитка на утеплители термопанели толщиной 60 мм.
Перегородки: блоки газобетона 100 мм.
Перекрытия: по деревянным балкам.
Крыша: мансардная, утепленная.
Кровля: металлочерепица.
Наружная отделка: клинкерная плитка на термопанели.

Габаритные размеры дома: 13,820 х 11,320 м. (в осях)
Минимальные размеры участка: 18,00 x 16,00 м.
Зеркальная проекция: да.
ПРИМЕЧАНИЕ:
- Состав проектной документации:
- Архитектурно-Строительный раздел (АР + КР) = да.
- Инженерные разделы (ОВ, ВК,ЭО) (ИС) = нет.
- Стоимость проектной документации >>>



Предложение Товар/Услуга
СТРОИТЕЛЬСТВО Калькулятор стоимости материалов ➤
БЕСПЛАТНО Экспресс-доставка проектов во все регионы России бесплатно!
ЦЕНЫ Мы не посредники и не перепродаем проекты по завышенным ценам. Обратившись к нам вы сможете напрямую заключить договор на приобретение готового проекта дома или индивидуальное проектирование непосредственно с архитекторами авторами проектной документации и по ценам, которые они предлагают.
ПОДАРКИ При покупке любого проекта серий ДС и ДСГ мы дарим вам проект бани ДС 34-6.

Стоимость проекта: 50 500 руб.
Архитектурный паспорт проекта: 4 500 руб.
Заказать дополнительную копию проекта:
НЕ заказывать копию проекта:  
1 копия проекта: 4 500 руб.
2 копии проекта: 9 000 руб.
Выбрать проекцию дома:
Проект: прямая проекция  
Проект: зеркальная проекция  

По вопросам консультации или приобретения проектной документации по этому проекту просьба звонить по телефону:
+7 926-377-46-81

 
Как правильно оформить заказ проекта дома на parthenon-house.ru?

Проект дома Сроки Экспресс-Доставки Вашего заказа "от двери до двери" по России
Москва, Санкт-Петербург, Орел, Белгород, Рязань, Курск, Нижний Новгород, Казань, Ярославль, Калуга, Иваново 1 день
Калининград, Архангельск, Краснодар, Ростов-на-Дону, Астрахань, Волгоград, Самара, Саратов, Екатеринбург, Новосибирск, Омск, Томск, Сургут, Тюмень, Новый Уренгой, Ханты-Мансийск, Барнаул, Челябинск, Пермь, Красноярск, Ижевск, Уфа 2 дня
Хабаровск, Владивосток, Иркутск, Якутск, Улан-Удэ 3 дня
Салехард, Нерюнгри, Южно-Сахалинск, Абакан, Чита 4 дня
Доставка в страны СНГ 3 - 5
дней

Назад в раздел
 

Последние проекты
Дом с гаражом
ПА-278Н 278,18 кв.м
Дом с сауной
ПА-316Н 316,70 кв.м
Новые проекты
Новые проекты домов и коттеджей Новые проекты домов и коттеджей
Архив новые проекты
домов и коттеджей
Проект месяца
Лучший проект месяца. Январь 2024г. Проект двухэтажного дома с гаражом ДС 244-9 Лучший проект месяца. Январь 2024г. Проект двухэтажного дома с гаражом ДС 244-9
Архив проект месяца
Проект дома в стиле модерн ПА-269М
Определение площадей

Объявления

Мы оказываем помощь и даем грамотные и профессиональные консультации по подбору готовых проекты домов, коттеджей, бань, гаражей, бассейнов, беседок и других малоэтажных построек. В нашем каталоге также широко представлены проекты коммерческого назначения (мотели, магазины, автомойки). Мы оказываем свои услуги по всей России и странам СНГ. Проектная документация разработана в соответствии с действующими строительными нормами и правилами, принятыми в Российской Федерации и обеспечивает безопасную для жизни и здоровья людей эксплуатацию объекта при соблюдении предусмотренных рабочими чертежами мероприятий. Мы оказываем содействие не только в подборе готовых проектов домов самых лучших архитекторов России, но также можем помочь вам с индивидуальным проектированием по вашим эскизам. Кроме этих проектных работ, мы можем предложить и рекомендовать вам услуги надежных строительных компаний работающих в Московской области и других регионах России.

| Проекты домов | Пример проекта | Строительство | Все о стройке | Контакты | Мобильная версия | Политика конфиденциальности и обработки персональных данных |

https://www.parthenon-house.ru - готовые проекты домов, малоэтажное строительство России.
Разработка, дизайн и продвижение сайта - компания "ПАРФЕНОН" (2007-2025)
Мы на Одноклассниках Мы вконтакте